77 West 55th Street

New York, New York 10019 38 W 39th St. NY NY 10018

212-581-3003

24/7 Customer Support

Mon - Fri: 24/7

Always open online

Fifth Ave, Grand Central, Office Space For Rent 10,300 SF

  • Upon request
Fifth Ave, New York, New York 10017, USA
For Lease/Rent
Fifth Ave, Grand Central, Office Space For Rent 10,300 SF
Fifth Ave, New York, New York 10017, USA
  • Upon request

Description

Fifth Ave, Grand Central, Office Space For Rent 10,300 SF

 

Fifth Ave, Grand Central, Office Space For Rent 10,300 SF

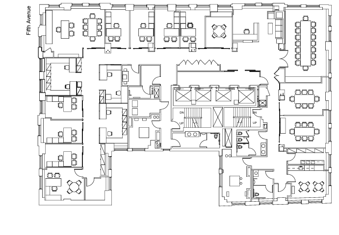
  • Existing office intensive installation in excellent condition
  • With above standard features
  • Sheetrock ceilings maximizing ceiling height in reception
  • Common corridor, boardroom and corner office
  • Plus wood floor in reception, corridor and corner office)
  • Terrific light and views overlooking Bryant Park and the Public Library
  • Layout ideal for a law firm, private equity firm
  • Or investment bank: 10 offices, 7 workstations
  • Boardroom (16+ person capacity)
  • 2 conference rooms (8+ person capacity each)
  • Reception area, pantry and storage
  • Fits 50 – 69 people

.

Property Overview

.

Fifth Avenue is an iconic high-rise office building located in the heart of Bryant Park, New York City. Designed by the renowned architects Starrett & Van Vleck, the 24-story tower was completed in 1926 and underwent a significant renovation in 2013 led by Swanke Hayden Connell.

Constructed with steel and reinforced concrete, the building retains historic character through its arched window pairs and intricate facade reliefs. Its elegant lobby features marble terrazzo floors, Novelda limestone walls, and backlit white glass panels, creating a sophisticated first impression. Currently owned by RFR Realty, Fifth Avenue is a LEED Silver-certified office property.

The tower offers 275,738 rentable square feet of office space, with individual floors ranging from 4,100 to 18,300 square feet. Ground-floor retail is also available along Fifth Avenue, with prime frontage facing the New York Public Library and Bryant Park—one of the city’s most trafficked and prestigious locations.

Tenants at Fifth Avenue benefit from 24/7 security, key-card access, multiple private terraces, storage facilities, and a dedicated package delivery center. The building is served by seven passenger elevators and one freight elevator, ensuring convenient vertical circulation. Nearby amenities include Bryant Park, the New York Public Library, and a wide selection of upscale shopping and dining along Fifth Avenue.

The location offers excellent connectivity, with multiple subway lines via the 5th Avenue-Bryant Park Station, as well as easy access to Grand Central Terminal and Penn Station.

.

Building Amenities

.

  • 24/7 access
  • Communal lobby space
  • Key card building entry
  • Lobby attendant
  • Option to add ISP
  • Storage
  • Turnstiles

.

Transportation in Grand Central Station

In this region, Grand Central Terminal is a primary transportation hub. It serves Metro-North trains and the East Side 4, 5, and 6 local and express subway lines. Grand Central acts as a central core for transit in Midtown Manhattan, offering rail, subway, bus, taxi, and airport service all within steps of the Main Concourse. Grand Central Terminal main entrance is 89 E. 42nd Street (at Park Avenue), New York, NY 10017. It is accessible via the 4, 5, 6, 7, and S subway lines, the M101, M102, M103, M1, M2, M3, M4, Q32, and M42 buses and the Hudson, Harlem, and New Haven lines on Metro-North.

Grand Central–42nd Street"4" train"5" train"6" train"6" express train"7" train"7" express train​​42nd Street Shuttle

.

Details

Updated on March 3, 2026 at 9:56 am
  • Property ID: GC-200-359
  • Price: Upon request
  • Property Size: 10300 Sq Ft
  • Year Built: 1926
  • Property Type: Office Space
  • Property Status: For Lease/Rent
  • Price: per square foot
  • Lease term: 3-10 Years
  • Suite/Floor: 16th
  • Central HVAC: Yes

Floor Plans

image

Description:

  • City New York
  • State/county New York
  • Zip/Postal Code 10017
  • Area Bryant Park, Grand Central

Contact Information

View Listings

Enquire About This Property

Similar Listings

Featured
  • $76 per SF
866 Second Ave New York, NY

866 Second Ave New York, NY 10017 – 2 Dag Hammarskjold Plaza – Class A Office/Medical space for rent, Near United Nations

  • $76 per SF
866 2nd Avenue, New York, NY, USA

866 Second Ave New York, NY 10017   866 Second Ave New York, NY 10017 Cross Street:  East 47th St.  […]

  • 6450 Sq Ft
  • $76 per SF
  • Medical Office Space, Office Space, Showroom Space
Details

United Nations, Midtown Manhattan

4 months ago
Featured
  • $60 per SF $2500 /month
30 E 60th Street, NY, NY Office Medical space for lease 500-25000 sq ft

30 E 60th Street, NY, NY Office Medical space for lease 500-25000 sq ft

  • $60 per SF $2500 /month
30 E 60th St, New York, NY 10022, USA

30 E 60th Street, NY, NY Office Medical space for lease 500-25000 sq. ft.
$60-70 per Sq. Ft. Office or Medical space for lease 800 -1500 – 2500 – 4500-7800 10,000 sf plus

 We will accommodate any size 800-25,000 sf.

  • 500 - 20,000 Sq Ft
  • $60 per SF $2500 /month
  • Medical Office Space, Office Space
Details

Upper East Side, Plaza District

4 months ago

Lexington Ave, Grand Central Built and Furnished Office Space for Lease/Sublease 1,700 – 5,000 SF

  • Low price sublet
Lexington Ave, New York, NY 10017, USA

Lexington Ave, Grand Central Built and Furnished Office Space for Lease/Sublease 1,700 – 5,000 SF   Lexington Ave, Grand Central […]

  • 1700 - 5000 Sq Ft
  • Low price sublet
  • Office Space
Details

Grand Central, Lexington Ave

6 months ago
  • Upon request
250 W 54th St. 4

250 W 54th St, Columbus Circle, NYC Class B Office space for lease

  • Upon request
250 W 54th St, New York, NY 10019, USA

250 W 54th St, Columbus Circle, NYC Class B Office space for lease.  Very affordable rent prices ! 7th floor […]

  • 1850 - 3000-10,000 Sq Ft
  • Upon request
  • Office Space, Medical Office Space
Details

Columbus Circle, Midtown Manhattan

6 months ago

Compare listings

Compare
Glenn Tojoy
  • Glenn Tojoy