77 West 55th Street

New York, New York 10019 38 W 39th St. NY NY 10018

212-581-3003

24/7 Customer Support

Mon - Fri: 24/7

Always open online

Jamaica, Queens, Industrial Space For Rent 52,300 SF

  • $20 per SF
Jamaica, NY 11433, USA
For Lease/Rent
Jamaica, Queens, Industrial Space For Rent 52,300 SF
Jamaica, NY 11433, USA
  • $20 per SF

Description

Jamaica, Queens, Industrial Space For Rent 52,300 SF

 

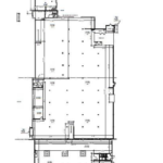
Jamaica, Queens, Industrial Space For Rent 52,300 SF, 1st Floor, $20 per SF

  • Free standing building
  • 15 minutes-JFK airport
  • 2,418 pallet positions, Floor drains, 4,100/sf rear yard
  • Furniture and pallet racking available
  • There is 4,500/sf of 2nd floor office space and +/-1,509/sf 1st floor office space
  • 1st floor: 46,400 sf & 4,000 sf mezzanine

.

Highlights

.

  • Pristine distribution center with class A offices
  • 15 minutes-JFK airport
  • 2,418 pallet positions, Floor drains, 4,100/sf rear yard
  • Furniture and pallet racking available
  • Adjacent 100,000/sf parking lot with 10,000/sf fleet storage building available separately

.

Building Notes

.

  • Loading Docks: 3 ext
  • Drive Ins: 1 tot
  • Zoning: M-1
  • Ceiling Ht: 22′
  • Power: Yes
  • Utilities: Gas, Sewer

.

Queens Transportation

Queens boasts extensive subway access, featuring lines such as the 7, E, F, M, N, R, and W, which connect the borough to Manhattan, Brooklyn, and other parts of NYC. Key hubs include Jamaica Center, Long Island City, and Flushing, ensuring efficient and convenient travel throughout the city.

Details

Updated on August 5, 2025 at 5:02 am
  • Property ID: Q-100-282
  • Price: $20 per SF
  • Property Size: 52300 Sq Ft
  • Year Built: 1950
  • Property Type: Warehouse and industrial
  • Property Status: For Lease/Rent
  • Price: per square foot
  • Lease term: 3-10 Years
  • Suite/Floor: 1st Floor
  • City New York
  • State/county New York
  • Zip/Postal Code 11433
  • Area Queens

Contact Information

View Listings

Enquire About This Property

Similar Listings

  • $20 per SF $35,833 /month
Brooklyn, Sunset Park, Industrial/Warehouse Space For Sublease 21,500 SF

Brooklyn, Sunset Park, Industrial/Warehouse Space For Sublease 21,500 SF

  • $20 per SF $35,833 /month
Brooklyn, NY 11232, USA

Brooklyn, Sunset Park, Industrial/Warehouse Space For Sublease 21,500 SF   Brooklyn, Sunset Park, Industrial/Warehouse Space For Sublease 21,500 SF, $20 […]

  • 21500 Sq Ft
  • $20 per SF $35,833 /month
  • Warehouse and industrial
Details

Brooklyn

1 year ago
  • $12 per SF $13,050 /month
Brooklyn, Industrial Space For Rent 13,050 SF

Brooklyn, Industrial Space For Rent 13,050 SF

  • $12 per SF $13,050 /month
Brooklyn, NY 11224, USA

Brooklyn, Industrial Space For Rent 13,050 SF   Brooklyn, Industrial Space For Rent 13,050 SF, $12 per SF $13,050 /month, […]

  • 13050 Sq Ft
  • $12 per SF $13,050 /month
  • Warehouse and industrial
Details

Brooklyn

1 year ago
  • $13 per SF $21,720 /month
Ozone Park, Industrial Space For Rent 20,050 SF

Ozone Park, Industrial Space For Rent 20,050 SF

  • $13 per SF $21,720 /month
Ozone Park, NY 11417, USA

Ozone Park, Industrial Space For Rent 20,050 SF   Ozone Park, Industrial Space For Rent 20,050 SF, $13 per SF […]

  • 20050 Sq Ft
  • $13 per SF $21,720 /month
  • Warehouse and industrial
Details

Brooklyn, Queens

1 year ago
  • $20 per SF $42,000 /month
Brooklyn, NYC, Industrial Space For Lease 25,200 SF

Brooklyn, NYC, Industrial Space For Lease 25,200 SF

  • $20 per SF $42,000 /month
Brooklyn, NY 11222, USA

Brooklyn, NYC, Industrial Space For Lease 25,200 SF   Brooklyn, NYC, Industrial Space For Lease 25,200 SF, $20 per SF […]

  • 25200 Sq Ft
  • $20 per SF $42,000 /month
  • Warehouse and industrial
Details

Brooklyn

1 year ago

Compare listings

Compare
Jimmy Eastwood
  • Jimmy Eastwood