77 West 55th Street

New York, New York 10019 38 W 39th St. NY NY 10018

212-581-3003

24/7 Customer Support

Mon - Fri: 24/7

Always open online

Wooster St, SoHo, Retail/Showroom Space For Lease 2,700 – 3,800 SF

  • Upon Request
Wooster St, New York, NY 10013, USA
For Lease/Rent
Wooster St, SoHo, Retail/Showroom Space For Lease 2,700 – 3,800 SF
Wooster St, New York, NY 10013, USA
  • Upon Request

Description

Wooster St, SoHo, Retail/Showroom Space For Lease 2,700 – 3,800 SF

 

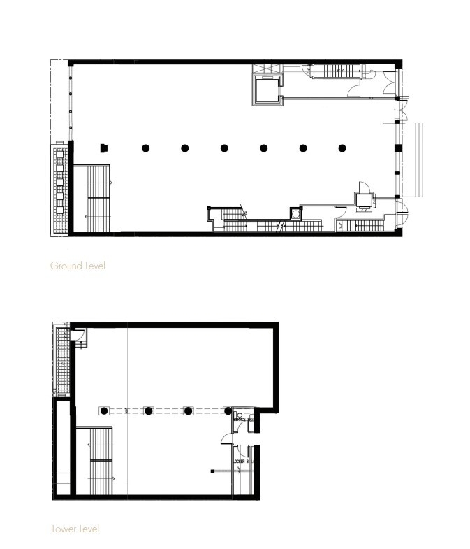
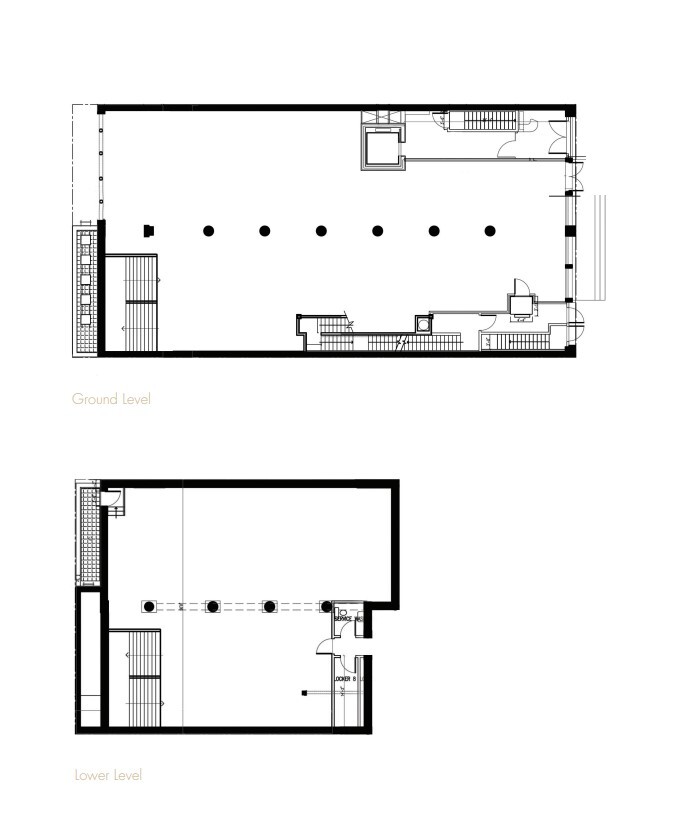
Wooster St, SoHo, Retail/Showroom Space For Lease 2,700 – 3,800 SF, LL and Ground Floor

Unit LL 2,700 SF

  • Light bathed space with transom windows in front and ceiling height windows in back
  • Gracious façade with dual entrances and large windows
  • Ground floor is ADA accessible through residential elevator
  • Efficiently located single row of cast iron columns
  • Hardwood and tile floors
  • Pantry and restroom on both levels
  • HVAC in place
  • Pristine bridal salon/showroom build out
  • Blade signage

Unit Ground Floor 3,800 SF

  • Light bathed space with transom windows in front and ceiling height windows in back
  • Gracious façade with dual entrances and large windows
  • Ground floor is ADA accessible through residential elevator
  • Efficiently located single row of cast iron columns
  • Hardwood and tile floors
  • Pantry and restroom on both levels
  • HVAC in place
  • Pristine bridal salon/showroom build out
  • Blade signage

.

Building Notes

.

Brand new retail condo located in the base of a luxury residential building. The premises offers numerous amenities including: All new 40′ wood/glass storefront, New HVAC, Hardwood Floors, Outstanding rear atrium & skylight, 16′ ceilings. Neighbors include: The Drawing Center, Format, Marithe Francois Girbaud.

.

Building Amenities

.

  • Air Conditioning
  • Wheelchair Accessible (Rooms)
  • Elevator

.

Transportation in SoHo

SoHo is ideal spot in NYC and it’s giving incredible selection to public commute. Thousands of people are coming each day to SoHo – tourists, freelancers, and business owners. With its comfortable office spaces to rent, it is a very popular place to work in. The Red, Blue lines, N, R, J, and Z trains pass through the neighborhood, as well as the PATH train, making SoHo easily accessible from Brooklyn, Queens, and nearby suburbs.  local and inter borough  buses, Bus: M1, SIM1C, SIM4C  have stops in SoHo. People who need to travel for work can take the PATH train to New Jersey.

Eighth Avenue LineVivid blue"A" train"C" train"E" train

.

Details

Updated on August 1, 2025 at 1:54 pm
  • Property ID: S-100-387
  • Price: Upon Request
  • Property Size: 2700 - 3800 Sq Ft
  • Year Built: 2002
  • Property Type: Retail Space, Showroom Space
  • Property Status: For Lease/Rent
  • Price: per square foot
  • Lease term: 3-10 Years
  • Suite/Floor: LL and GRND
  • Central HVAC: Yes
  • Building Class: B

Floor Plans

image

Description:

  • City New York
  • State/county New York
  • Zip/Postal Code 10013
  • Area SoHo

Contact Information

View Listings

Enquire About This Property

Similar Listings

Featured
  • $76 per SF
866 Second Ave New York, NY

866 Second Ave New York, NY 10017 – 2 Dag Hammarskjold Plaza – Class A Office/Medical space for rent, Near United Nations

  • $76 per SF
866 2nd Avenue, New York, NY, USA

866 Second Ave New York, NY 10017   866 Second Ave New York, NY 10017 Cross Street:  East 47th St.  […]

  • 6450 Sq Ft
  • $76 per SF
  • Medical Office Space, Office Space, Showroom Space
Details

United Nations, Midtown Manhattan

4 months ago
  • Upon request
30 E 60th Street, Manhattan, NY, NY, Retail Best Restaurant space for lease

30 E 60th Street, NY, NY, Retail, Art Gallery space for lease, UES

  • Upon request
30 E 60th St, New York, NY 10022, USA

30 E 60th Street, NY NY, Retail,  Art Gallery space for lease UES The image is rendering to show how […]

  • 1700 - 3500 Sq Ft
  • Upon request
  • Retail Space, Gallery Space
Details

Upper East Side, Plaza District

6 months ago
  • Upon request
1350 Ave of the Americas, NY, NY, Plaza District, Class A Office space for rent

1350 Ave of the Americas, NY, NY, Plaza District, Class A Office space for rent

  • Upon request
1350 6th Ave, New York, NY 10019, USA

 1350 Ave of the Americas, NY NY,  Plaza District, Class A Office space for lease   High floors 1,600-3,000 rentable […]

  • 1600 - 3,000 sf
  • Upon request
  • Office Space, Showroom Space
Details

Plaza District, Sixth Avenue, Midtown Manhattan

7 months ago
  • $178 PSF $4,746 / month
319 West 47th St, Times Square, NYC, Retail/Office Space For Rent 320 SF

319 West 47th St, Times Square, NYC, Retail/Office Space For Rent 320 SF

  • $178 PSF $4,746 / month
319 W 47th St, New York, NY 10036, USA

319 West 47th St, Times Square, NYC, Retail/Office Space For Rent 320 SF   319 West 47th St, Times Square, […]

  • 320 Sq Ft
  • $178 PSF $4,746 / month
  • Office Space, Retail Space
Details

Time Square

7 months ago

Compare listings

Compare
Jimmy Eastwood
  • Jimmy Eastwood