77 West 55th Street

New York, New York 10019 38 W 39th St. NY NY 10018

212-581-3003

24/7 Customer Support

Mon - Fri: 24/7

Always open online

7th Ave, Columbus Circle, Furnished Prebuilt Office Space For Rent 6,300 – 15,500 SF

  • Upon Request
7th Ave, New York, NY 10106, USA
For Lease/Rent
7th Ave, Columbus Circle, Furnished Prebuilt Office Space For Rent 6,300 – 15,500 SF
7th Ave, New York, NY 10106, USA
  • Upon Request

Description

7th Ave, Columbus Circle, Furnished Prebuilt Office Space For Rent 6,300 – 15,500 SF

 

7th Ave, Columbus Circle, Furnished Prebuilt Office Space For Rent 6,300 – 15,500 SF

Suite 6,300 SF

  • Brand new
  • Fully furnished prebuilt with high end design and finishes
  • Fits 30 – 55 People

Suite 15,500 SF

  • Fully furnished built space in excellent condition
  • Fits 70 – 140 People

.

Property Overview

.

Situated in one of New York City’s most prestigious locations, Seventh Avenue is directly adjacent to the world-renowned Carnegie Hall, offering a rich cultural backdrop.

Just steps away from iconic landmarks such as Columbus Circle, Central Park, and the luxurious Ritz-Carlton Hotel, the building provides unparalleled access to both serene green spaces and the vibrancy of Midtown Manhattan. The office tower boasts magnificent, unobstructed views of Central Park and the Manhattan skyline, creating a stunning visual experience for tenants and visitors alike.

Serving as the corporate headquarters of Vornado Realty Trust, Seventh Avenue is a prime example of modern design and functionality. The building’s expansive lobby sets the tone for the entire space, with sleek, contemporary finishes that complement the vibrant energy of the surrounding area.

The plaza areas at the entrance add to the building’s dynamic appeal, offering both a welcoming environment for guests and a practical, engaging space for tenants. The design elements reflect a perfect blend of style and sophistication, fitting for a corporate headquarters in such a prominent location.

Beyond the office space, Seventh Avenue is ideally positioned for those who appreciate both work and leisure. The building’s tenants enjoy convenient access to a wide variety of dining options, including the popular Red Eye Grill and Brooklyn Diner, both well-loved by locals and visitors alike.

These nearby restaurants provide a mix of casual and upscale dining, making it easy to enjoy a meal, host a business lunch, or unwind after a busy day. With its prime location, state-of-the-art facilities, and access to vibrant dining and cultural destinations, Seventh Avenue stands as one of the city’s most sought-after addresses, offering an exceptional environment for businesses to thrive.

.

Building Amenities

.

  • 24 Hour Access
  • Bus Line
  • Controlled Access
  • Courtyard
  • Metro/Subway
  • Property Manager on Site
  • Restaurant
  • Security System
  • LEED Certified – Gold
  • Energy Star Labeled

.

Building Notes

.

  • On 57th Street between 7th Avenue and Broadway.
  • 24/7 Security
  • 11′-6″ to 13′-6″ ceiling heights
  • LEED Gold Certified

.

Transportation in Columbus Circle

Walking is an excellent way for New Yorkers to take care of their health, but almost everyone chooses to use personal cars or public transportation. The M5, M7, M10, M20, and M104 buses serve the circle, providing through service. Under the Columbus Circle is the New York City Subway’s 59th Street–Columbus Circle station, served by several trains. Traffic in this area is in high intensity. Luckily the public transportation is well organized.

59th Street–Columbus Circle"1" train"A" train"B" train"C" train"D" train

Details

Updated on August 1, 2025 at 4:39 am
  • Property ID: CC-100-653
  • Price: Upon Request
  • Property Size: 6300 - 15500 Sq Ft
  • Year Built: 1969
  • Property Type: Office Space
  • Property Status: For Lease/Rent
  • Price: per square foot
  • Lease term: 3-10 Years
  • Suite/Floor: 3rd, 4th Floors
  • Reception Area: Yes
  • Central HVAC: Yes
  • Available Furniture: Yes
  • Pantry: Yes
  • Attended Lobby: Yes
  • Building Class: A

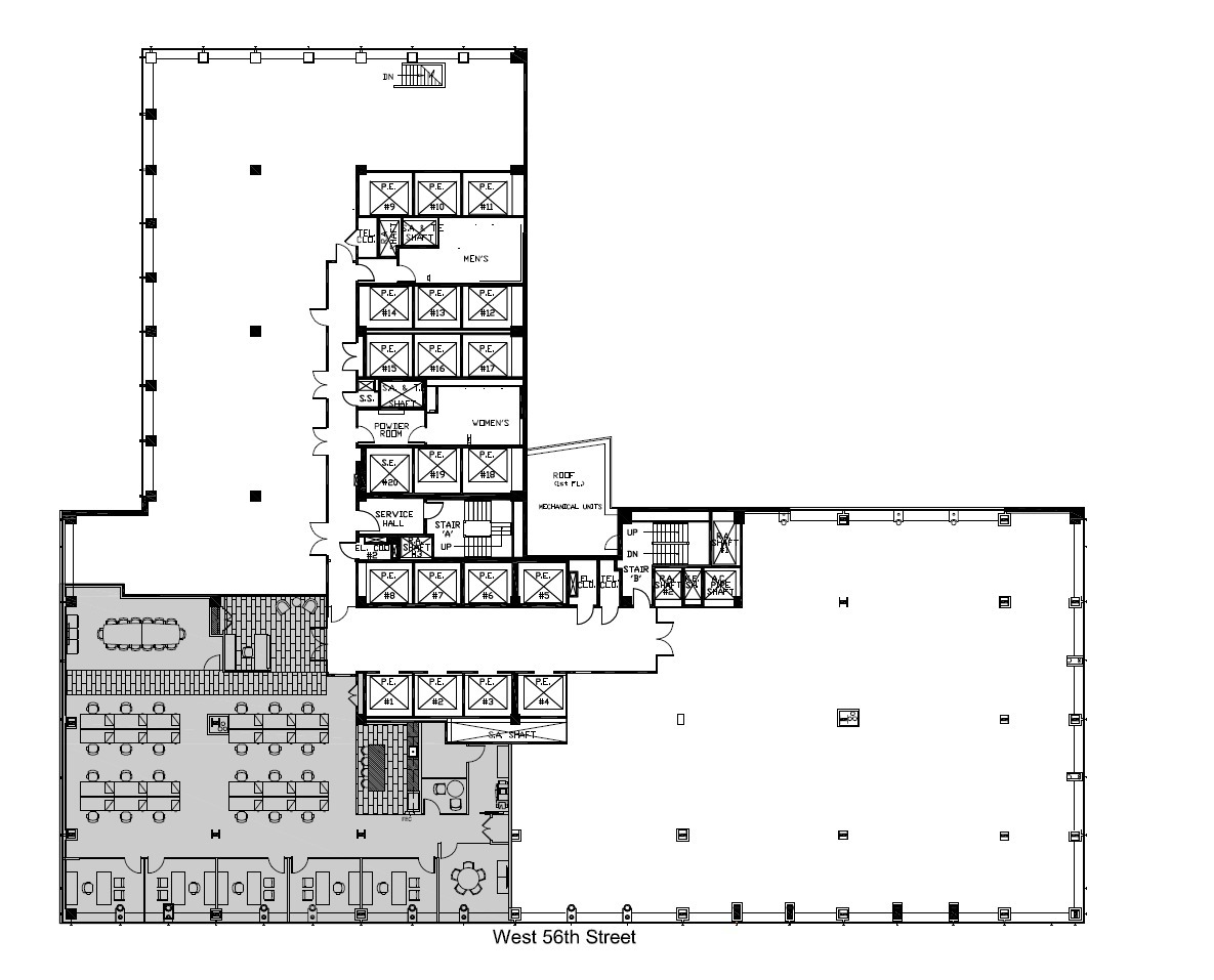
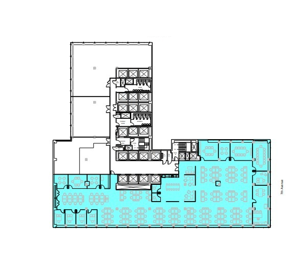
Floor Plans

image

Description:

image

Description:

  • City New York
  • State/county New York
  • Zip/Postal Code 10106
  • Area Columbus Circle

Contact Information

View Listings

Enquire About This Property

Similar Listings

Featured
  • $76 per SF
866 Second Ave New York, NY

866 Second Ave New York, NY 10017 – 2 Dag Hammarskjold Plaza – Class A Office/Medical space for rent, Near United Nations

  • $76 per SF
866 2nd Avenue, New York, NY, USA

866 Second Ave New York, NY 10017   866 Second Ave New York, NY 10017 Cross Street:  East 47th St.  […]

  • 6450 Sq Ft
  • $76 per SF
  • Medical Office Space, Office Space, Showroom Space
Details

United Nations, Midtown Manhattan

4 months ago
Featured
  • $60 per SF $2500 /month
30 E 60th Street, NY, NY Office Medical space for lease 500-25000 sq ft

30 E 60th Street, NY, NY Office Medical space for lease 500-25000 sq ft

  • $60 per SF $2500 /month
30 E 60th St, New York, NY 10022, USA

30 E 60th Street, NY, NY Office Medical space for lease 500-25000 sq. ft.
$60-70 per Sq. Ft. Office or Medical space for lease 800 -1500 – 2500 – 4500-7800 10,000 sf plus

 We will accommodate any size 800-25,000 sf.

  • 500 - 20,000 Sq Ft
  • $60 per SF $2500 /month
  • Medical Office Space, Office Space
Details

Upper East Side, Plaza District

4 months ago

Lexington Ave, Grand Central Built and Furnished Office Space for Lease/Sublease 1,700 – 5,000 SF

  • Low price sublet
Lexington Ave, New York, NY 10017, USA

Lexington Ave, Grand Central Built and Furnished Office Space for Lease/Sublease 1,700 – 5,000 SF   Lexington Ave, Grand Central […]

  • 1700 - 5000 Sq Ft
  • Low price sublet
  • Office Space
Details

Grand Central, Lexington Ave

6 months ago
  • Upon request
250 W 54th St. 4

250 W 54th St, Columbus Circle, NYC Class B Office space for lease

  • Upon request
250 W 54th St, New York, NY 10019, USA

250 W 54th St, Columbus Circle, NYC Class B Office space for lease.  Very affordable rent prices ! 7th floor […]

  • 1850 - 3000-10,000 Sq Ft
  • Upon request
  • Office Space, Medical Office Space
Details

Columbus Circle, Midtown Manhattan

6 months ago

Compare listings

Compare
Robert Isaacs
  • Robert Isaacs