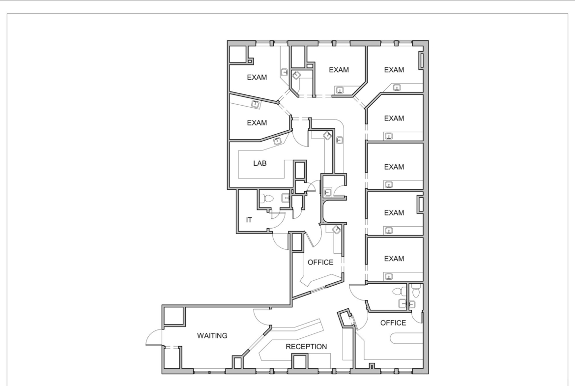
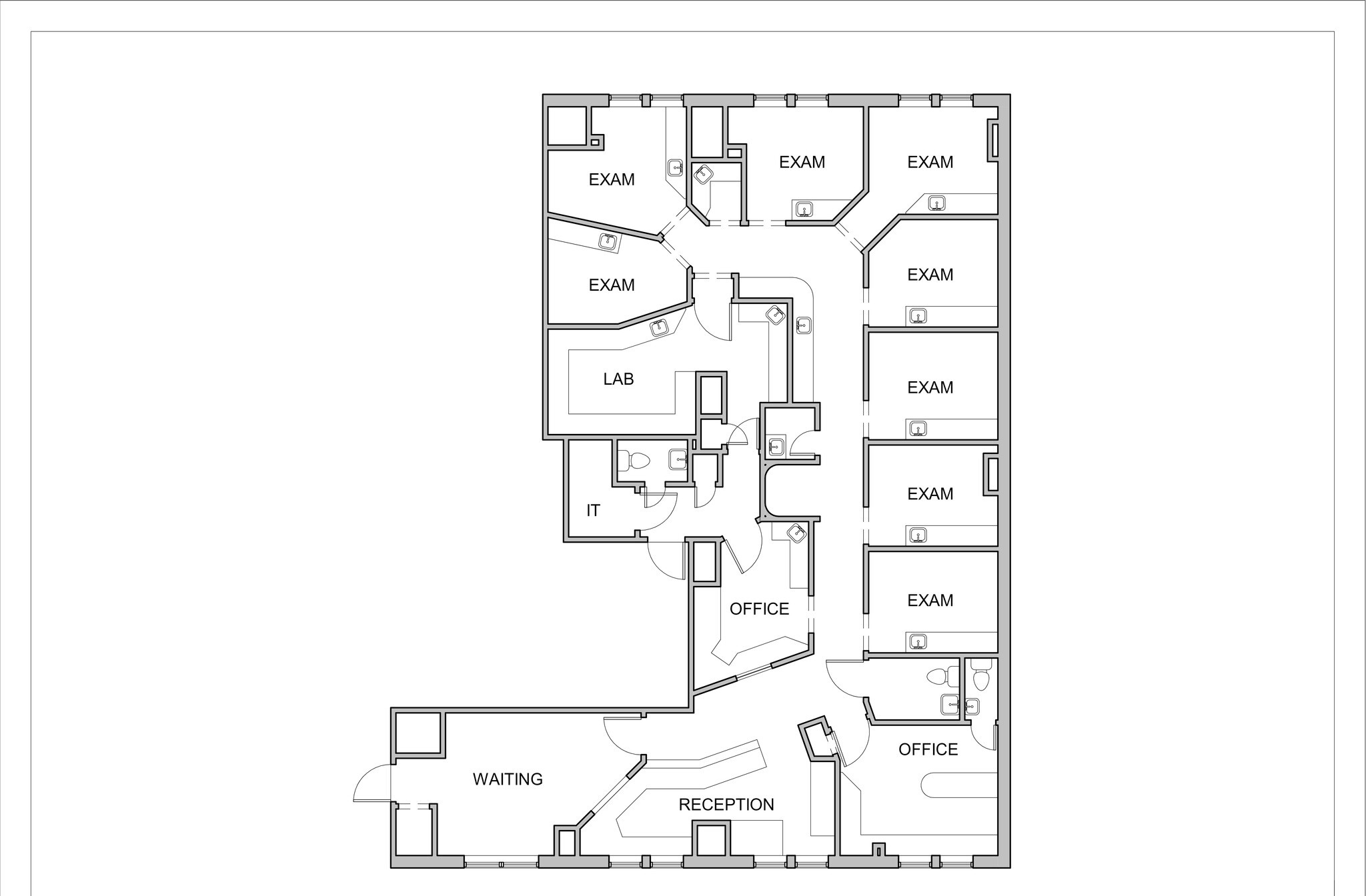
Upper East Side, E 64th St, Built Office/Medical Space For Rent 2,800 – 3,200 SF
Suite 3,200 SF
Suite 2,800 SF
.
.
Presiding dramatically above New York’s most exclusive neighborhood, this building offers a five-star experience that rivals the luxury of Manhattan’s great hotels. Extended stays start at 30 days and can be arranged for several months. Discover the art of beautiful living with Manhattan’s premier extended stay experience.
Comfortable, clean, and well-appointed bedroom suites feature luxurious details like superior quality linens, goose down pillows, and generous closet space. The Upper East Side of Manhattan is known for its wealthy denizens, posh restaurants, and designer stores.
.
Upper East Side sits in the hearts of Midtown Manhattan and it is well connected with other parts of the city and the suburbs. You might be surprised, but the average number of owned cars per household for UES inhabitants is close to zero. That speaks a lot for the excellent functioning of public transport, excellent pedestrian- and bike-friendly routes and the vicinity of transportation hubs as Grand Central Station. Bus lines going uptown and downtown service the area: M1, M2, M3, M4, M15. Crosstown buses: M66, M72, M79 M86, M96.
Trains:
| Lexington Avenue Line | Apple green |
866 Second Ave New York, NY 10017 866 Second Ave New York, NY 10017 Cross Street: East 47th St. […]
United Nations, Midtown Manhattan
30 E 60th Street, NY, NY Office Medical space for lease 500-25000 sq. ft.
$60-70 per Sq. Ft. Office or Medical space for lease 800 -1500 – 2500 – 4500-7800 10,000 sf plus
We will accommodate any size 800-25,000 sf.
Upper East Side, Plaza District
250 W 54th St, Columbus Circle, NYC Class B Office space for lease. Very affordable rent prices ! 7th floor […]
Columbus Circle, Midtown Manhattan
Murray Hill, Fifth Ave, Built Office/Medical Space For Rent 8,100 SF Murray Hill, Fifth Ave, Built Office/Medical Space For […]
Murray Hill, 5th Avenue
Compare listings
Compare