77 West 55th Street

New York, New York 10019 38 W 39th St. NY NY 10018

212-581-3003

24/7 Customer Support

Mon - Fri: 24/7

Always open online

Lexington Ave, Lenox Hill, Fully Built-Out Medical Office Space For Rent 1,700 SF

  • $82 per SF $11,616 /month
Lexington Ave, New York, NY 10065, USA
For Lease/Rent
Lexington Ave, Lenox Hill, Fully Built-Out Medical Office Space For Rent 1,700 SF
Lexington Ave, New York, NY 10065, USA
  • $82 per SF $11,616 /month

Description

Lexington Ave, Lenox Hill, Fully Built-Out Medical Office Space For Rent 1,700 SF

 

Lexington Ave, Lenox Hill, Fully Built-Out Medical Office Space For Rent 1,700 SF, $82 per SF $11,616 /month

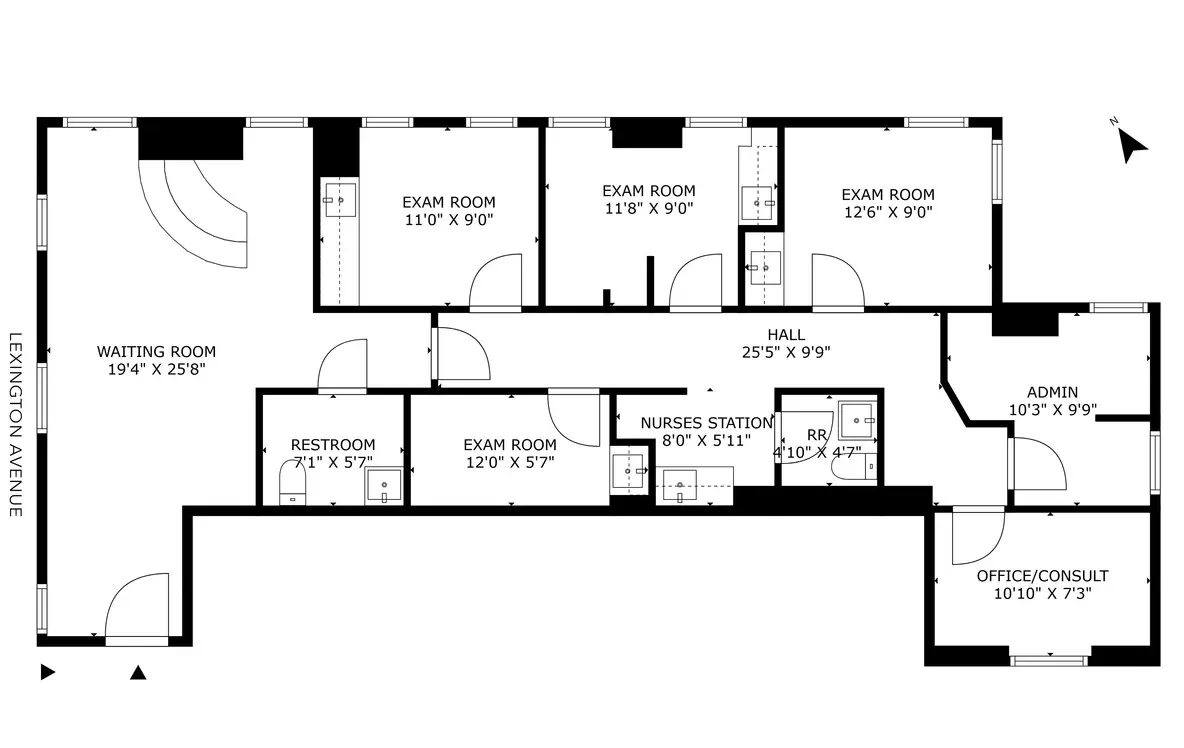
  • Medical suite located inside a full-service co-op building
  • This renovated space features tile flooring, central air conditioning
  • Currently configured for standard medical
  • Features a large waiting area and reception
  • Four exam rooms, an office/consult
  • A nurses station, admin office, and two restrooms
  • This space is adaptable to any medical specialty

.

Transportation around Upper East Side

Upper East Side sits in the hearts of Midtown Manhattan and it is well connected with other parts of the city and the suburbs. You might be surprised, but the average number of owned cars per household for UES inhabitants is close to zero. That speaks a lot for the excellent functioning of public transport, excellent pedestrian- and bike-friendly routes and the vicinity of transportation hubs as Grand Central Station. Bus lines going uptown and downtown service the area:  M1, M2, M3, M4, M15.  Crosstown buses: M66, M72, M79 M86, M96.

Trains:

 Lexington Avenue LineApple green"4" train"5" train"6" train"6" express train

 

Details

Updated on December 20, 2025 at 8:15 am
  • Property ID: UES-200-236
  • Price: $82 per SF $11,616 /month
  • Property Size: 1700 Sq Ft
  • Year Built: 1907
  • Property Type: Medical Office Space
  • Property Status: For Lease/Rent
  • Price: per square foot
  • Lease term: 3-10 Years
  • Suite/Floor: 2nd
  • Reception Area: Yes
  • Central HVAC: Yes
  • Building Class: B

Floor Plans

image

Description:

  • City New York
  • State/county New York
  • Zip/Postal Code 10065
  • Area Upper East Side, Lenox Hill

Contact Information

View Listings

Enquire About This Property

Similar Listings

Featured
  • $76 per SF
866 Second Ave New York, NY

866 Second Ave New York, NY 10017 – 2 Dag Hammarskjold Plaza – Class A Office/Medical space for rent, Near United Nations

  • $76 per SF
866 2nd Avenue, New York, NY, USA

866 Second Ave New York, NY 10017   866 Second Ave New York, NY 10017 Cross Street:  East 47th St.  […]

  • 6450 Sq Ft
  • $76 per SF
  • Medical Office Space, Office Space, Showroom Space
Details

United Nations, Midtown Manhattan

4 months ago
Featured
  • $60 per SF $2500 /month
30 E 60th Street, NY, NY Office Medical space for lease 500-25000 sq ft

30 E 60th Street, NY, NY Office Medical space for lease 500-25000 sq ft

  • $60 per SF $2500 /month
30 E 60th St, New York, NY 10022, USA

30 E 60th Street, NY, NY Office Medical space for lease 500-25000 sq. ft.
$60-70 per Sq. Ft. Office or Medical space for lease 800 -1500 – 2500 – 4500-7800 10,000 sf plus

 We will accommodate any size 800-25,000 sf.

  • 500 - 20,000 Sq Ft
  • $60 per SF $2500 /month
  • Medical Office Space, Office Space
Details

Upper East Side, Plaza District

4 months ago
  • Upon request
250 W 54th St. 4

250 W 54th St, Columbus Circle, NYC Class B Office space for lease

  • Upon request
250 W 54th St, New York, NY 10019, USA

250 W 54th St, Columbus Circle, NYC Class B Office space for lease.  Very affordable rent prices ! 7th floor […]

  • 1850 - 3000-10,000 Sq Ft
  • Upon request
  • Office Space, Medical Office Space
Details

Columbus Circle, Midtown Manhattan

6 months ago
  • $48 PSF $32,400 /month
Murray Hill, Fifth Ave, Built Office/Medical Space For Rent 8,100 SF

Murray Hill, Fifth Ave, Built Office/Medical Space For Rent 8,100 SF

  • $48 PSF $32,400 /month
5th Ave, New York, NY 10016, USA

Murray Hill, Fifth Ave, Built Office/Medical Space For Rent 8,100 SF   Murray Hill, Fifth Ave, Built Office/Medical Space For […]

  • 8100 Sq Ft
  • $48 PSF $32,400 /month
  • Medical Office Space, Office Space
Details

Murray Hill, 5th Avenue

7 months ago

Compare listings

Compare
Robert Isaacs
  • Robert Isaacs