77 West 55th Street

New York, New York 10019 38 W 39th St. NY NY 10018

212-581-3003

24/7 Customer Support

Mon - Fri: 24/7

Always open online

West Chelsea, W 23rd St, Gallery or Gym Fitness Space For Lease 2,400 SF

  • Upon Request
W 23rd St, New York, NY 10011, USA
For Lease/Rent
West Chelsea, W 23rd St, Gallery or Gym Fitness Space For Lease 2,400 SF
W 23rd St, New York, NY 10011, USA
  • Upon Request

Description

West Chelsea, W 23rd St, Gallery or Gym Fitness Space For Lease 2,400 SF

 

West Chelsea, W 23rd St, Gallery or Gym Fitness Space For Lease 2,400 SF  Ground Floor  

  • Under the High-Line, steps from the entrance
  • 3 skylights and unique architectural details
  • Surrounded by galleries, restaurants and luxury retail
  • HVAC in place
  • Built out conference room, reception desk and restroom
  • Ideal owner/user or investor opportunity
  • Retail, Restaurant, Gallery, Office, Salon, Fitness, Cafe

.

Building Amenities

.

  • Air Conditioning
  • Wheelchair Accessible (Rooms)
  • Concierge, Doorman
  • Elevator, Fitness Center
  • Storage Space

.

Transportation in Chelsea

The territory is all around associated with the Metro zone because of its great transportation joins. Workers can pick between a couple of choices for public vehicle. Chelsea is effectively available with New York City transport courses M 7, M 10, M 11, M 12, M 14 and M 23, and houses the fundamental access to the 34th Street station for the 7 train. New York City Subway is additionally strategically placed in the submarket.

Because of this, it is a highly attractive office space for lease in Manhattan providing comfortable commuting for potential workers and residents. Another curious fact is that Chelsea is listed among the top 20 most walkable areas in the whole New York City. So, if you have missed your cardio training, you can make your way to the office by foot as well!

 Eighth Avenue Lineblue"A" train"C" train"E" train
Broadway–Seventh Avenue Line red"1" train"2" train"3" train

.

Details

Updated on August 1, 2025 at 11:23 am
  • Property ID: C-100-108
  • Price: Upon Request
  • Property Size: 2400 Sq Ft
  • Year Built: 2008
  • Property Type: Gallery Space, Gym Fitness space, Retail Space
  • Property Status: For Lease/Rent
  • Price: per square foot
  • Lease term: 3-10 Years
  • Suite/Floor: Ground Floor
  • Reception Area: Yes
  • Central HVAC: Yes
  • Building Class: A

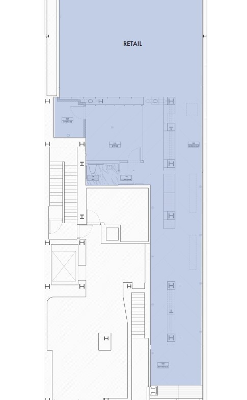
Floor Plans

image

Description:

  • City New York
  • State/county New York
  • Zip/Postal Code 10011
  • Area Chelsea

Contact Information

View Listings

Enquire About This Property

Similar Listings

  • Upon request
30 E 60th Street, Manhattan, NY, NY, Retail Best Restaurant space for lease

30 E 60th Street, NY, NY, Retail, Art Gallery space for lease, UES

  • Upon request
30 E 60th St, New York, NY 10022, USA

30 E 60th Street, NY NY, Retail,  Art Gallery space for lease UES The image is rendering to show how […]

  • 1700 - 3500 Sq Ft
  • Upon request
  • Retail Space, Gallery Space
Details

Upper East Side, Plaza District

6 months ago
  • $178 PSF $4,746 / month
319 West 47th St, Times Square, NYC, Retail/Office Space For Rent 320 SF

319 West 47th St, Times Square, NYC, Retail/Office Space For Rent 320 SF

  • $178 PSF $4,746 / month
319 W 47th St, New York, NY 10036, USA

319 West 47th St, Times Square, NYC, Retail/Office Space For Rent 320 SF   319 West 47th St, Times Square, […]

  • 320 Sq Ft
  • $178 PSF $4,746 / month
  • Office Space, Retail Space
Details

Time Square

7 months ago
  • Upon Request
Union Square West, NYC Office/Retail Space For Rent 7,100 SF

Union Square West, NYC Office/Retail Space For Rent 7,100 SF

  • Upon Request
Union Square W, New York, NY 10003, USA

Union Square West, NYC Office/Retail Space For Rent 7,100 SF   Union Square West, NYC Office/Retail Space For Rent 7,100 […]

  • 7100 Sq Ft
  • Upon Request
  • Office Space, Retail Space
Details

Union Square

7 months ago
  • $39 PSF $32,825 /month
Fifth Ave, Bryant Park, Fully Built Office Space For Sublease 10,100 SF

Fifth Ave, Bryant Park, Fully Built Office Space For Sublease 10,100 SF

  • $39 PSF $32,825 /month
5th Ave, New York, NY 10036, USA

Fifth Ave, Bryant Park, Fully Built Office Space For Sublease 10,100 SF   Fifth Ave, Bryant Park, Fully Built Office […]

  • 10100 Sq Ft
  • $39 PSF $32,825 /month
  • Office Space, Retail Space
Details

Bryant Park, Grand Central

7 months ago

Compare listings

Compare
Jimmy Eastwood
  • Jimmy Eastwood