77 West 55th Street

New York, New York 10019 38 W 39th St. NY NY 10018

212-581-3003

24/7 Customer Support

Mon - Fri: 24/7

Always open online

Columbus Circle, NYC, 58th St, Class A office space for lease

  • Upon request
Columbus Cir, New York, NY, USA
For Lease/Rent
Columbus Circle, NYC, 58th St, Class A office space for lease
Columbus Cir, New York, NY, USA
  • Upon request

Description

Columbus Circle, NYC, 58th St, Class A office space for lease

 

High floors,  3,000 sf, 2,500 sf, 5,500 sf, 7,500 sf. 

1. Great Views and Location, Energy Star Labeled 24/7 Access.

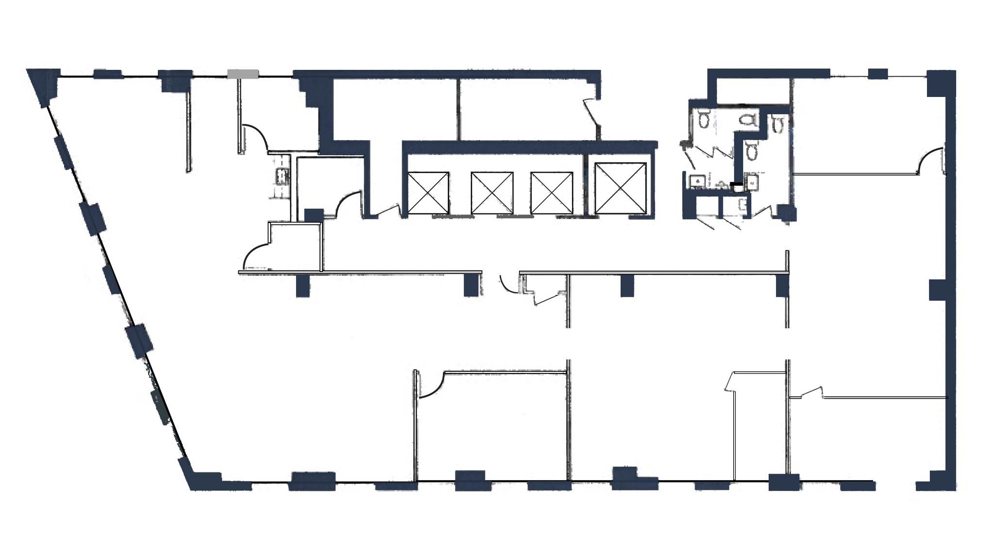
1 Executive Office, Desks for 25, 2 Meeting Rooms, 2 Pantries.

Dedicated Reception, Large Conference Room.

Multiple Divisions available.

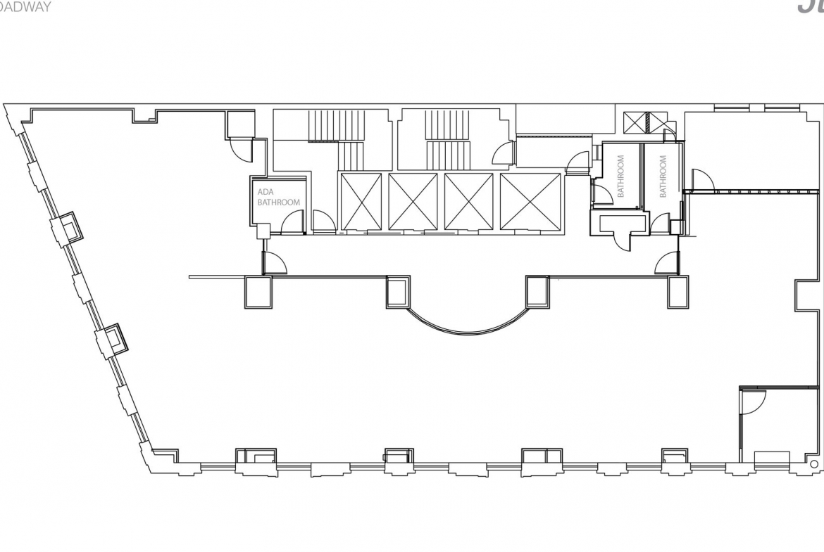
2. Space is ready – Carpet throughout – Glass-fronted office  – Glass common corridor – 2 Private bathrooms

– ADA bathroom  – LED lights – Views into Times square down Broadway Wide-open space with high ceilings,  conference room,

3. Space is ready – 1 Conference room – 3 offices with good lighting –

Executive office with views of Hudson River – IT/copy room – Waiting area –

New wet pantry – Views into Times square down Broadway.

 

Transportation in Columbus Circle

Walking is an excellent way for New Yorkers to take care of their health, but almost everyone chooses to use personal cars or public transportation. The M5, M7, M10, M20, and M104 buses serve the circle, providing through service. Under the Columbus Circle is the New York City Subway’s 59th Street–Columbus Circle station, served by several trains. Traffic in this area is in high intensity. Luckily the public transportation is well organized.

59th Street–"1" train"A" train"B" train"C" train"D" train

Details

Updated on August 6, 2025 at 11:37 am
  • Price: Upon request
  • Property Size: 2500 - 5500 Sq Ft
  • Property Type: Retail Space
  • Property Status: For Lease/Rent
  • Price: per square foot
  • Lease term: 3-10 Years
  • Suite/Floor: High Fls
  • Pre-built offices: 10
  • Conference room: 2
  • Reception Area: Yes
  • Central HVAC: Yes
  • Available Furniture: Yes
  • Pantry: Yes
  • Attended Lobby: Yes
  • Building Class: A

Floor Plans

image

Description:

image

Description:

  • City New York
  • State/county New York
  • Zip/Postal Code 10019
  • Area Columbus Circle, Midtown Manhattan

Contact Information

View Listings

Enquire About This Property

Similar Listings

  • Upon request
30 E 60th Street, Manhattan, NY, NY, Retail Best Restaurant space for lease

30 E 60th Street, NY, NY, Retail, Art Gallery space for lease, UES

  • Upon request
30 E 60th St, New York, NY 10022, USA

30 E 60th Street, NY NY, Retail,  Art Gallery space for lease UES The image is rendering to show how […]

  • 1700 - 3500 Sq Ft
  • Upon request
  • Retail Space, Gallery Space
Details

Upper East Side, Plaza District

7 months ago
  • $178 PSF $4,746 / month
319 West 47th St, Times Square, NYC, Retail/Office Space For Rent 320 SF

319 West 47th St, Times Square, NYC, Retail/Office Space For Rent 320 SF

  • $178 PSF $4,746 / month
319 W 47th St, New York, NY 10036, USA

319 West 47th St, Times Square, NYC, Retail/Office Space For Rent 320 SF   319 West 47th St, Times Square, […]

  • 320 Sq Ft
  • $178 PSF $4,746 / month
  • Office Space, Retail Space
Details

Time Square

8 months ago
  • Upon Request
Union Square West, NYC Office/Retail Space For Rent 7,100 SF

Union Square West, NYC Office/Retail Space For Rent 7,100 SF

  • Upon Request
Union Square W, New York, NY 10003, USA

Union Square West, NYC Office/Retail Space For Rent 7,100 SF   Union Square West, NYC Office/Retail Space For Rent 7,100 […]

  • 7100 Sq Ft
  • Upon Request
  • Office Space, Retail Space
Details

Union Square

8 months ago
  • $39 PSF $32,825 /month
Fifth Ave, Bryant Park, Fully Built Office Space For Sublease 10,100 SF

Fifth Ave, Bryant Park, Fully Built Office Space For Sublease 10,100 SF

  • $39 PSF $32,825 /month
5th Ave, New York, NY 10036, USA

Fifth Ave, Bryant Park, Fully Built Office Space For Sublease 10,100 SF   Fifth Ave, Bryant Park, Fully Built Office […]

  • 10100 Sq Ft
  • $39 PSF $32,825 /month
  • Office Space, Retail Space
Details

Bryant Park, Grand Central

8 months ago

Compare listings

Compare
Don Schmidt
  • Don Schmidt