77 West 55th Street

New York, New York 10019 38 W 39th St. NY NY 10018

212-581-3003

24/7 Customer Support

Mon - Fri: 24/7

Always open online

Broome St, Lower East Side, Fully Built-Out Retail/Restaurant Space For Lease 2,050 SF

  • Upon request
Broome St, New York, NY 10002, USA
For Lease/Rent
Broome St, Lower East Side, Fully Built-Out Retail/Restaurant Space For Lease 2,050 SF
Broome St, New York, NY 10002, USA
  • Upon request

Description

Broome St, Lower East Side, Fully Built-Out Retail/Restaurant Space For Lease 2,050 SF

 

Broome St, Lower East Side, Fully Built-Out Retail/Restaurant Space For Lease 2,050 SF

Unit 2,050 SF

  • Fully Equipped Bar/Restaurant
  • Buily Out Bars On Each Floor
  • Kitchen In Place with Hood
  • Prep Area in Lower Level
  • Large Walk-In Box In Place
  • Previous Full Liquor Licenses
  • 5 Bathrooms In Place (2 ADA)
  • Fully Installed Speaker System
  • Steps Away From Sara D. Roosevelt Park
  • BSMT

Unit 2,050 SF

  • Fully Equipped Bar/Restaurant
  • Buily Out Bars On Each Floor
  • Kitchen In Place with Hood
  • Prep Area in Lower Level
  • Large Walk-In Box In Place
  • Previous Full Liquor Licenses
  • 5 Bathrooms In Place (2 ADA)
  • Fully Installed Speaker System
  • Steps Away From Sara D. Roosevelt Park
  • GRND

.

Highlights

.

  • Turnkey Bar/Lounge Opportunity
  • Built-Out Kitchen
  • Previously Licensed
  • Beautiful interior on the Lower East Side

.

Transportation around Lower East Side

The Lower East Side (LES) offers exceptional connectivity, making it a prime location for residents and businesses alike. Conveniently served by multiple subway lines, bus routes, and bike lanes, the neighborhood provides seamless access to the rest of Manhattan and beyond.

Subways & Public Transit

The LES is well-connected by the B, D, F, J, M, and Z subway lines, with key stations including Delancey St/Essex St, Bowery, and Grand St. These lines offer quick commutes to Midtown, the Financial District, Brooklyn, and Queens. Additionally, multiple MTA bus routes, such as the M15, M9, and M14 SBS, provide easy crosstown and uptown access.

Details

Updated on July 30, 2025 at 4:23 am
  • Property ID: LES-100-851
  • Price: Upon request
  • Property Size: 2050 Sq Ft
  • Year Built: 1990
  • Property Type: Retail Space
  • Property Status: For Lease/Rent
  • Price: per square foot
  • Lease term: 3-10 Years
  • Suite/Floor: BSMT, GRND
  • Central HVAC: Yes
  • Building Class: C

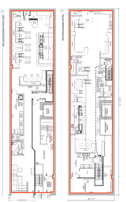
Floor Plans

image

Description:

  • City New York
  • State/county New York
  • Zip/Postal Code 10002
  • Area Lower East Side

Contact Information

View Listings

Enquire About This Property

Similar Listings

  • Upon request
30 E 60th Street, Manhattan, NY, NY, Retail Best Restaurant space for lease

30 E 60th Street, NY, NY, Retail, Art Gallery space for lease, UES

  • Upon request
30 E 60th St, New York, NY 10022, USA

30 E 60th Street, NY NY, Retail,  Art Gallery space for lease UES The image is rendering to show how […]

  • 1700 - 3500 Sq Ft
  • Upon request
  • Retail Space, Gallery Space
Details

Upper East Side, Plaza District

6 months ago
  • $178 PSF $4,746 / month
319 West 47th St, Times Square, NYC, Retail/Office Space For Rent 320 SF

319 West 47th St, Times Square, NYC, Retail/Office Space For Rent 320 SF

  • $178 PSF $4,746 / month
319 W 47th St, New York, NY 10036, USA

319 West 47th St, Times Square, NYC, Retail/Office Space For Rent 320 SF   319 West 47th St, Times Square, […]

  • 320 Sq Ft
  • $178 PSF $4,746 / month
  • Office Space, Retail Space
Details

Time Square

7 months ago
  • Upon Request
Union Square West, NYC Office/Retail Space For Rent 7,100 SF

Union Square West, NYC Office/Retail Space For Rent 7,100 SF

  • Upon Request
Union Square W, New York, NY 10003, USA

Union Square West, NYC Office/Retail Space For Rent 7,100 SF   Union Square West, NYC Office/Retail Space For Rent 7,100 […]

  • 7100 Sq Ft
  • Upon Request
  • Office Space, Retail Space
Details

Union Square

7 months ago
  • $39 PSF $32,825 /month
Fifth Ave, Bryant Park, Fully Built Office Space For Sublease 10,100 SF

Fifth Ave, Bryant Park, Fully Built Office Space For Sublease 10,100 SF

  • $39 PSF $32,825 /month
5th Ave, New York, NY 10036, USA

Fifth Ave, Bryant Park, Fully Built Office Space For Sublease 10,100 SF   Fifth Ave, Bryant Park, Fully Built Office […]

  • 10100 Sq Ft
  • $39 PSF $32,825 /month
  • Office Space, Retail Space
Details

Bryant Park, Grand Central

7 months ago

Compare listings

Compare
Glenn Tojoy
  • Glenn Tojoy