77 West 55th Street

New York, New York 10019 38 W 39th St. NY NY 10018

212-581-3003

24/7 Customer Support

Mon - Fri: 24/7

Always open online

Third Ave, Grand Central, Built & Furnished Office Space For Sublease 5,850 – 17,450 SF

  • Upon Request
3rd Ave, New York, NY 10022, USA
For Sublease
Third Ave, Grand Central, Built & Furnished Office Space For Sublease 5,850 – 17,450 SF
3rd Ave, New York, NY 10022, USA
  • Upon Request

Description

Third Ave, Grand Central, Built & Furnished Office Space For Sublease 5,850 – 17,450 SF

 

Third Ave, Grand Central, Built & Furnished Office Space For Sublease 5,850 – 17,450 SF

Suite 17,450 SF

  • Fully furnished plug-and-play sublease
  • Floors can be subleased individually or in any combination
  • Each floor features open seating
  • Multiple conference and collaborative rooms
  • Glass front offices, pantry areas with abundant light
  • And city views throughout
  • Knoll furniture throughout
  • Supplemental AC on all floors in various areas
  • Renovated restrooms on all floors
  • Globally recognized and stable Sublandlord
  • 8th Floor
  • Fits 100 – 116 People

Suite 5,850 SF

  • Fully Built-Out as Standard Office
  • 4 Private Offices
  • 20 Workstations
  • Space is in Excellent Condition
  • Mostly Open Floor Plan Layout
  • 1 Conference Room
  • Finished Ceilings: 12’8”
  • Can be combined with additional space(s)
  • Fits 20 – 39 People

.

Property Overview

.

Third Avenue is a premier Class-A office tower located in the heart of Manhattan, designed by renowned architects Cesar Pelli, Viñoly Design Architects, and Emery Roth & Sons. This impressive 36-story building offers approximately 600,000 square feet of prime office space, attracting top tenants from industries such as financial services, legal, and entertainment.

With floor plates ranging from 4,000 to 18,350 square feet, the building caters to a diverse range of businesses. Its efficient layouts, abundant natural light, stunning panoramic views, and unbeatable location on Third Avenue set it apart as one of the area’s leading properties.

Completed in 1983, Third Avenue features a newly renovated lobby, 12 modern passenger elevators, and a freight elevator. The building is equipped with state-of-the-art systems and offers 24/7 security and access for tenants.

Perfectly situated for commuters, Third Avenue is within six blocks of eight subway lines and the Roosevelt Island Tram Station. Additionally, the building holds LEED Gold Certification, underscoring its commitment to sustainability.

.

Building Amenities

.

  • 24 Hour Access
  • Bus Line
  • Metro/Subway
  • Property Manager on Site
  • Energy Star Labeled

.

Transportation in Grand Central Station

In this region, Grand Central Terminal is a primary transportation hub. It serves Metro-North trains and the East Side 4, 5, and 6 local and express subway lines. Grand Central acts as a central core for transit in Midtown Manhattan, offering rail, subway, bus, taxi, and airport service all within steps of the Main Concourse. Grand Central Terminal main entrance is 89 E. 42nd Street (at Park Avenue), New York, NY 10017. It is accessible via the 4, 5, 6, 7, and S subway lines, the M101, M102, M103, M1, M2, M3, M4, Q32, and M42 buses and the Hudson, Harlem, and New Haven lines on Metro-North.

Grand Central–42nd Street"4" train"5" train"6" train"6" express train"7" train"7" express train​​42nd Street Shuttle

.

Details

Updated on March 17, 2026 at 7:21 pm
  • Property ID: GC-100-726
  • Price: Upon Request
  • Property Size: 5850 - 17,450 Sq Ft
  • Year Built: 1983
  • Property Type: Office Space
  • Property Status: For Sublease
  • Price: per square foot
  • Lease term: 3-10 Years
  • Suite/Floor: 5th, 8th Floors
  • Reception Area: Yes
  • Central HVAC: Yes
  • Available Furniture: Yes
  • Pantry: Yes
  • Attended Lobby: Yes
  • Building Class: A

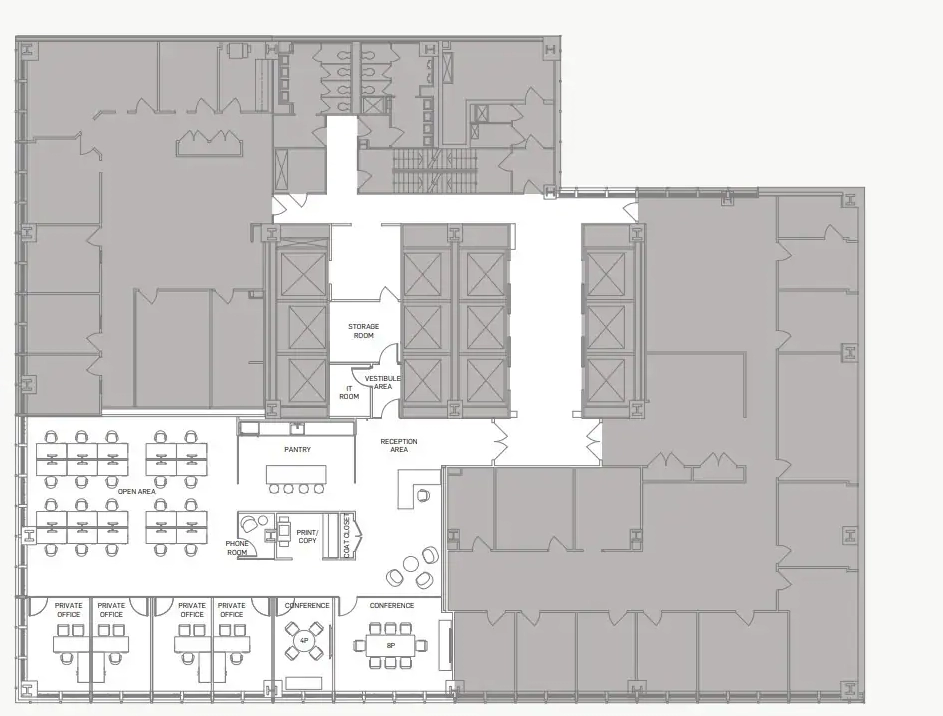
Floor Plans

image

Description:

  • City New York
  • State/county New York
  • Zip/Postal Code 10022
  • Area Grand Central

Contact Information

View Listings

Enquire About This Property

Similar Listings

Featured
  • $76 per SF
866 Second Ave New York, NY

866 Second Ave New York, NY 10017 – 2 Dag Hammarskjold Plaza – Class A Office/Medical space for rent, Near United Nations

  • $76 per SF
866 2nd Avenue, New York, NY, USA

866 Second Ave New York, NY 10017   866 Second Ave New York, NY 10017 Cross Street:  East 47th St.  […]

  • 6450 Sq Ft
  • $76 per SF
  • Medical Office Space, Office Space, Showroom Space
Details

United Nations, Midtown Manhattan

5 months ago
Featured
  • $60 per SF $2500 /month
30 E 60th Street, NY, NY Office Medical space for lease 500-25000 sq ft

30 E 60th Street, NY, NY Office Medical space for lease 500-25000 sq ft

  • $60 per SF $2500 /month
30 E 60th St, New York, NY 10022, USA

30 E 60th Street, NY, NY Office Medical space for lease 500-25000 sq. ft.
$60-70 per Sq. Ft. Office or Medical space for lease 800 -1500 – 2500 – 4500-7800 10,000 sf plus

 We will accommodate any size 800-25,000 sf.

  • 500 - 20,000 Sq Ft
  • $60 per SF $2500 /month
  • Medical Office Space, Office Space
Details

Upper East Side, Plaza District

5 months ago

Lexington Ave, Grand Central Built and Furnished Office Space for Lease/Sublease 1,700 – 5,000 SF

  • Low price sublet
Lexington Ave, New York, NY 10017, USA

Lexington Ave, Grand Central Built and Furnished Office Space for Lease/Sublease 1,700 – 5,000 SF   Lexington Ave, Grand Central […]

  • 1700 - 5000 Sq Ft
  • Low price sublet
  • Office Space
Details

Grand Central, Lexington Ave

7 months ago
  • Upon request
250 W 54th St. 4

250 W 54th St, Columbus Circle, NYC Class B Office space for lease

  • Upon request
250 W 54th St, New York, NY 10019, USA

250 W 54th St, Columbus Circle, NYC Class B Office space for lease.  Very affordable rent prices ! 7th floor […]

  • 1850 - 3000-10,000 Sq Ft
  • Upon request
  • Office Space, Medical Office Space
Details

Columbus Circle, Midtown Manhattan

7 months ago

Compare listings

Compare
Robert Isaacs
  • Robert Isaacs